Engineers' e-Partner
For your advertisments
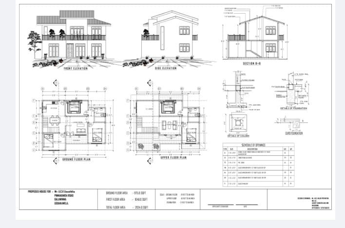
Home Construction Services BOQ Estimate N and H House Plan Design and Construction BOQ Estimates in Wadduwa
Store | VERIFIED
Call
Chat on WhatsApp
Location
No.52 , Albert Gunathilaka Mawatha , Wadduwa
Share
BOQ Estimates in Wadduwa
Contact, N and H House Plan and Construction company for Hose Plan & Constrcutio services give you the flexibility to personalize to suit your specific needs. Whether you're looking to adjust the layout Building Plans or enhance home estimates features, we can help you create a design that aligns with your lifestyle and site conditions. Our expert home plan modification services are a great way to get your dream plan. By working with us, you can customize a home that’s uniquely yours, saving time and resources while ensuring the final design meets all of your needs. Start designing your dream home with us & today with our professional house plan and Construction modifications.
ඉදිකිරීම් සේවා සඳහා N and H House Plan and Construction සමාගම අමතන්න ඔබේ නිශ්චිත අවශ්යතාවලට ගැලපෙන පරිදි පුද්ගලීකරණය කිරීමට නම්යශීලී බවක් ලබා දෙයි. ඔබ පිරිසැලසුම ගොඩනැගිලි සැලසුම් සකස් කිරීමට හෝ නිවාස ඇස්තමේන්තු විශේෂාංග වැඩි දියුණු කිරීමට බලාපොරොත්තු වුවද, ඔබේ ජීවන රටාව සහ අඩවි තත්වයන්ට ගැලපෙන සැලසුමක් නිර්මාණය කිරීමට අපට ඔබට උදව් කළ හැකිය. අපගේ විශේෂඥ නිවාස සැලැස්ම වෙනස් කිරීමේ සේවාවන් ඔබේ සිහින සැලැස්ම ලබා ගැනීමට හොඳ ක්රමයකි. අප සමඟ වැඩ කිරීමෙන්, ඔබට අනන්ය ලෙස ඔබේ නිවසක් අභිරුචිකරණය කළ හැකිය, අවසාන සැලසුම ඔබේ සියලු අවශ්යතා සපුරාලන බව සහතික කරමින් කාලය සහ සම්පත් ඉතිරි කරයි. අපගේ වෘත්තීය නිවාස සැලැස්ම සහ ඉදිකිරීම් වෙනස් කිරීම් සමඟ අදම ඔබේ සිහින නිවස අප සමඟ සැලසුම් කිරීම ආරම්භ කරන්න.
Why Choose Our BOQ Estimates in Wadduwa srilanka?
✅ Accuracy You Can Rely On
We provide precise and detailed BOQ estimates that minimize cost overruns and ensure clear financial planning throughout the construction process.
✅ Local Expertise
Operating from Colombo, we understand the regional pricing, labor costs, and material availability. Our local knowledge ensures estimates that reflect real market conditions—not just textbook figures.
✅ Experienced Professionals
Our team consists of qualified quantity surveyors and estimators with years of experience in commercial, residential, and infrastructure projects.
✅ Fast Turnaround Times
We know that time is money. Our streamlined process delivers reliable estimates quickly, helping you keep your project on schedule.
✅ Customized Solutions
Whether you're a contractor, developer, or architect, we tailor our BOQ services to match your specific project requirements.
✅ Transparent & Ethical Service
No hidden fees. No vague descriptions. Just clear, honest, and professional documentation.
wedabima.com and D Factor Group make no warranty or representation for any products, services, deals and transactions between the user and the advertisers. Users strictly at their own risk.
BOQ for house construction in Sri Lanka price in Sri Lanka. Best deals from වැඩබිම.com for Hardware items in Sri Lanka. Amarajeewa Construction is the House Builders in Galle and the Home Construction Company in Galle. Our services, etc... Find best deals from වැඩබිම
BOQ and estimate for house construction in kottawa price in Sri Lanka. Best deals from වැඩබිම.com for Hardware items in Sri Lanka. Did you know that for those of you who dream of building a house, the latest consulting and supervis, etc... Find best deals from වැඩබිම
BOQ preparation in mawanella price in Sri Lanka. Best deals from වැඩබිම.com for Hardware items in Sri Lanka. Blueprint Builders are House Plan and Contruction Company in Sri lanka. Our team of experts includes architects, interior , etc... Find best deals from වැඩබිම
BOQ Construction Estimation Work price in Sri Lanka. Best deals from වැඩබිම.com for Hardware items in Sri Lanka. RJ Engineers and Builders Plan modification Drawings & BOQ services give you the flexibility to personalize a hous, etc... Find best deals from වැඩබිම
BOQ Preparation Nuwara Eliya price in Sri Lanka. Best deals from වැඩබිම.com for Hardware items in Sri Lanka. We undertake construction projects ranging from Housing Schemes to Luxury Apartments, Hotels, Hospitals, Supermarkets, Gar, etc... Find best deals from වැඩබිම
BOQ for house construction in Sri Lanka price in Sri Lanka. Best deals from වැඩබිම.com for Hardware items in Sri Lanka. RJ Engineers and Builders Plan modification Drawings & BOQ services give you the flexibility to personalize, etc... Find best deals from වැඩබිම
Popular search for boq estimates in wadduwa
boq estimates in wadduwa near me
boq estimates in wadduwa in Sri Lanka
boq estimates in wadduwa price in Sri Lanka
boq estimates in wadduwa supliers and services in Sri Lanka
Best boq estimates in wadduwa in Sri Lanka
වැඩබිම boq estimates in wadduwa in Sri Lanka
Steel building construction company
Steel building construction in Sri Lanka
Steel building construction company in Sri Lanka
Steel Warehouse Construction In SriLanka
Steel Construction Companies in Sri Lanka
Steel Building Consctruction company in Sri Lanka
Cheap Warehouse Construction Comapny in Sri Lanka
boq estimates in wadduwa in United States
boq estimates in wadduwa in Australia
Trending BOQ Estimate in Sri Lanka
View more
Trending Construction Services in Sri Lanka
Popular search by Location
boq estimates in wadduwa in Gampaha
boq estimates in wadduwa in Colombo
boq estimates in wadduwa in Kandy
boq estimates in wadduwa in Kurunegala
boq estimates in wadduwa in Kalutara
Popular BOQ Estimate by Location
Trending related categories
View less
